{{ index + 1 }}
Solution:  {{ selectedSolution.name }}
Technology:  {{ selectedTechnology.name }}
Capacity:  {{ selectedCapacity }} {{ isElectromechanical ? "MLD" : "KLD" }}
Modules:  {{ Object.keys(selectedModules).length }} selected
MoHUA SBM WASH Institute

STANDARD DESIGNS AND ESTIMATES

for Used Water Management and Faecal Sludge Management

Standard Drawings and Bills of Quantities for UWM infrastructure to support tendering processes

SELECT YOUR SOLUTION TYPE (Wastewater Treatment)

SELECT YOUR SOLUTION TYPE (Faecal Sludge Treatment)

SELECT TECHNOLOGY

{{ tech.name }}

{{ tech.description }}

About {{ selectedTechnology.name }}

Working Principle:
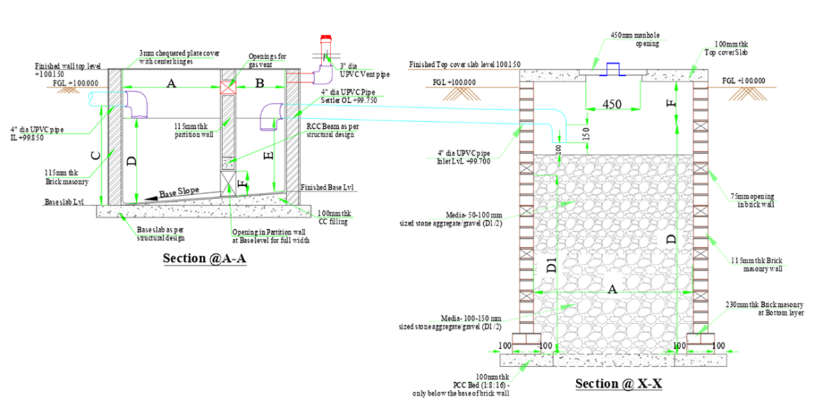
Soak pits are unlined or partially lined circular pits designed to allow used water to percolate directly into the surrounding soil through a filter media. The pit is typically filled with coarse materials such as rubble or brick bats, which create voids to facilitate infiltration and prevent immediate clogging.

A removable top cover should be provided to allow for regular inspection and maintenance. To enhance system performance and minimize clogging, it is recommended to use a settling tank as a pre-treatment step before the water enters the soak pit.

Suitability:
Soak pits are mostly used at the household level where the volume of used water is low, particularly for the disposal of supernatant from septic tanks. They are suitable in areas where the soil has good infiltration capacity, and the groundwater table is low (at least 1.5 meters below the bottom of the soak pit).

They are not suitable for: Flood-prone areas, Clayey or rocky soils, Soils with low permeability

Pros/Cons:
Pros: Most economical option for small capacities
Cons: Cons: May negatively affect soil and groundwater properties as it does not provide adequate treatment, and the pit will quickly clog.

O&M requirement:
Particles or biomass may clog the pit so cleaning or replacing the filter material once in 2 – 3 years or or sooner if overflow or surface pooling is observed in the surrounding area.

Working Principle:
The working principle of a leach pit is similar to that of a soak pit, with one key difference: the pit is not filled with any filter media. It is an unlined or partially lined circular pit designed to allow used water to infiltrate directly into the surrounding soil.

The structure is typically constructed using brick masonry or pre-cast concrete rings. Unlike a soak pit, which contains rubble or brick bats to aid filtration, the leach pit remains empty, allowing for increased hydraulic retention time—particularly useful when managing higher volumes of used water. This design facilitates gradual percolation of the water into the soil.

A removable top cover must be provided to enable periodic inspection and maintenance. To improve system performance and reduce the risk of clogging, it is recommended that settling tank be used as a pre-treatment step before water enters the pit.

Suitability:
Leach pits are primarily used for the disposal of used water, particularly greywater from households or from drain endpoints where the volume is relatively high (up to 10 KLD). They are suitable in areas where the soil has good infiltration capacity, and the groundwater table is low (at least 1.5 meters below the bottom of the soak pit).

They are not suitable for: Flood-prone areas, Clayey or rocky soils, Soils with low permeability

Pros/Cons:
Pros: Can be built and repaired with locally available materials, Low capital costs; low operating costs, small land requirements

Cons: May negatively affect soil and groundwater properties as it does not provide adequate treatment, and the pit will quickly clog.

O&M requirement:
Over time, fine particles, silt, or biomass may accumulate within the pit or around its infiltration surfaces, leading to reduced percolation efficiency. Periodic inspection is recommended, and the pit should be cleaned or desilted every 2–3 years, or sooner if overflow or surface pooling is observed in the surrounding area.

Working Principle:
The EA-ASP is a modified activated sludge process that operates with extended aeration and longer sludge retention times, enhancing biological treatment of used water. In this system, wastewater is continuously aerated in an aeration tank to promote microbial degradation of organic pollutants. A secondary clarifier follows to separate treated water from the biomass. The extended aeration reduces sludge generation and stabilizes organic matter more effectively. EA-ASP is simple to operate, reliable, and suitable for small to medium-sized towns with moderate flow variations.

Suitability:
Suitable for small to medium towns with consistent flows and loads.
- Preferred where land availability is moderate, and energy costs can be managed.
- Ideal for locations with limited technical staff, as the system is relatively simple.
- Well-suited for decentralized or peri-urban setups.
- Good choice for ULBs preferring robust, easy-to-operate systems.

Pros/Cons:
Pros: Simple to operate and maintain, well-stabilized sludge, Robust system for consistent flows, no complex automation required

Cons: Requires large land area, higher civil construction footprint, limited flexibility for load fluctuations, energy demand for aeration

O&M requirement:
- Simple operation; minimal instrumentation
- Regular aerator/blower maintenance
- Periodic sludge wasting (less frequent due to extended retention)
- Occasional tank cleaning and removal of scum/foam
- Suitable for operators with basic technical training

Working Principle:
The SBR is a fill-and-draw type activated sludge process where all treatment steps—equalization, aeration, and sedimentation—occur sequentially in the same tank. Wastewater is added in batches, treated biologically through aeration, and then allowed to settle before the treated effluent is discharged. The process operates in defined cycles (e.g., fill, react, settle, decant, idle) controlled by automation. SBR systems provide effective removal of BOD, COD, and nutrients. They are space-efficient, flexible for varying loads, and suitable for decentralized and municipal sewage treatment.

Suitability:
Suitable for medium to large towns with with automated operations and moderate to high used water volumes.
- Works well in space-constrained locations due to compact footprint.
- Best suited for areas with skilled operators and where automation and reliable power supply are available.
- Can handle flow and load variations, making it good for municipal use.
- Ideal for automated, time-sequenced operations in urban settings.
- Where higher treatment efficiency required

Pros/Cons:
Pros: Compact and space-efficient, high treatment efficiency (BOD, COD, nutrients), Flexible to flow/load variations, fully automated with minimal operator intervention during operation

Cons: Requires highly skilled operators and automation, high energy demand, sensitive to power failures, higher O&M complexity

O&M requirement:
- Requires skilled operators to manage automated cycle phases (fill, aerate, settle, decant)
- Daily monitoring of SCADA/PLC system
- Regular inspection and calibration of valves, pumps, timers, and decanters
- Sludge removal at defined intervals
- Power backup systems needed due to reliance on automation

Working Principle:
The MBBR system is a compact, aerobic biological treatment process that uses suspended plastic media (carriers) within an aeration tank to support biofilm growth. As used water flows through the tank, microorganisms on the media degrade organic pollutants. Continuous aeration keeps the media in motion, enhancing contact between the wastewater and biofilm. The system requires a secondary clarifier for solid-liquid separation. MBBR is energy-efficient, has a small footprint, and performs well under variable loading conditions. It is suitable for treating municipal sewage and can be used for upgrading existing systems.

Suitability:
- Suitable for small to medium towns with space limitations.
- Good for areas with moderate to variable organic loading.
- Suitable where biological treatment is preferred with less operator intervention.
- Performs efficiently under shock loads and flow variations.

Pros/Cons:
Pros: Compact footprint, handles load fluctuations well, low sludge generation, easier to operate than SBR, suitable for retrofitting/upgrading existing plants

Cons: Continuous aeration required, moderate energy consumption, biofilm media needs monitoring/replacement, not ideal for high nutrient removal

O&M requirement:
- Routine monitoring of aeration system (blower operation, DO levels)
- Periodic cleaning/checking of diffusers and carrier media
- Occasional inspection of media retention screens to prevent clogging
- Sludge removal from secondary clarifier as required
- Lower operator skill requirement than SBR

Working Principle:
DEWATS systems are based on modular technical configuration concept. Modules chosen for used water treatment consist of Settling tank (ST) for primary treatment, Anaerobic baffle reactor (ABR) with integrated filter (AF) for secondary treatment and Horizontal flow planted filter (HFPF) for tertiary treatment, polishing pond (if required for post treatment). Used water is passed through all these modules in sequence for treatment.

Suitability:
DEWATS (Decentralized Wastewater Treatment Systems) are designed based on the principle of low maintenance and energy-efficient operation. The modular combination of DEWATS components is well-suited for treating used water generated from housing communities or collected from drain endpoints with high volumes of used water. The treated effluent typically meets quality standards for safe reuse, particularly for landscape irrigation and non-food crops.

Pros/Cons:
Pros: DEWATS modules can be built and repaired with locally available materials and do not require energy or skilled labour and low in operations and maintenance cost as compared to electro-mechanically operated technologies. The units can be designed and easily integrated to blend with the surrounding landscape and produce a good quality effluent that can be reused.

Cons: Area requirement and capital cost is moderate to high.

O&M requirement:
Regular emptying of sludge (once in 2 to 3 years) and scum (once in 6 months) from ST and AF, cleaning (or replacement) of filter media once in 3 to 5 years in the AF and HFPF, harvesting of plants in the HFPF.

Working Principle:
Waste Stabilization Ponds (WSPs) are large, human-made water bodies in which used water are treated by naturally occurring processes under the influence of sun light, wind, microorganisms and algae. The ponds can be used individually, or linked in a series for improved treatment. There are three types of ponds in series (1) anaerobic, (2) facultative and (3) aerobic (maturation), each with different treatment and design characteristics.

Suitability:
Waste Stabilization Ponds (WSPs) are appropriate for towns and cities with large, open, and unused land areas, preferably located away from residential zones and public spaces. They are particularly well-suited for tropical and subtropical regions, where ample sunlight and warm temperatures enhance the natural treatment process. WSPs are especially effective for treating used water collected from drain endpoints, particularly where high volumes of used water are generated. The treated effluent is generally of a quality suitable for irrigation and agricultural reuse.

Pros/Cons:
Pros: WSPs are low capex and opex based system, can be built and repaired with locally available materials, system does not require electrical energy, basic skill requirement for O&M, can produce good quality effluent which is safe for its reuse.

Cons: WSPs require a large area. Ponds require regular sludge removal (especially anaerobic pond) to avoid excessive accumulation, as removing large volumes at once can be time-consuming and difficult to manage. They may produce undesirable odors, and mosquito control is required.

O&M requirement: Scum that builds up on the pond surface should be regularly removed, aquatic plants that are present in the pond should be removed as they may provide a breeding habitat for mosquitoes and prevent light from penetrating the water column. The anaerobic pond must be de-sludged approximately once every 2 to 5 years. De-scumming and de-sludging of ponds need to be carried out as per the schedule to avoid odor nuisance.

Working Principle:
Sludge Drying Bed (SDB) is a shallow, rectangular structure filled with layers of graded filter media, typically comprising sand and gravel of varying sizes and thicknesses. The bed is generally open to the atmosphere and is equipped with a drainage system at the base to collect percolate or leachate. An anaerobic digester can be deployed for digestion of sludge before application on the sludge drying beds, if required. Sludge is applied evenly over the top sand layer, and water drains through the filter media by gravity. An underdrain system collects the leachate, which is then directed either to a liquid treatment facility for further treatment. In addition to percolation, surface evaporation accelerates the drying process. The dried sludge is manually removed, usually after 10–15 days, depending on local climatic conditions and sludge characteristics.

Suitability:
- Suitable for small to medium towns with moderate sludge generation.
- Ideal where land is available, and climate is warm and dry.
- Can be used where periodical sludge removal is feasible manually.
- Suitable where no skilled manpower or electricity is available.
- Can be adopted where mechanical drying is not preferred or practical.
- Effective in remote locations with basic infrastructure

Pros/Cons:
Pros: Simple to construct and operate, low capital and operating cost, no energy or mechanical equipment required, uses locally available materials

Cons: Requires manual removal of sludge periodocally, drying time depends heavily on local weather conditions, can produce odor if not properly managed, prone to clogging over time, frequent maintenance of sand layer needed

O&M requirement:
Periodic removal of dried sludge (typically every 10–15 days depending on drying time)
Regular cleaning or replacement of the sand layer to prevent clogging
Monitoring of drainage system to ensure proper leachate flow
Odor control through proper loading and timely sludge removal
Maintenance of bed leveling and weeding if any vegetation grows unintentionally

Working Principle:
Planted Drying Bed (PDB) is a shallow, rectangular bed consisting of multiple layers—coarse gravel at the bottom, a sand filtration layer in the middle, and a top layer planted with specific wetland vegetation such as Canna indica or Phragmites australis. The bed is open to the atmosphere and equipped with a drainage system at the base to collect leachate or percolate. Sludge is applied uniformly over the sand surface, and water percolates downward through the filter media by gravity. The leachate is collected by an underdrain system and directed to a liquid treatment facility for further treatment.

The vegetation plays a critical role in enhancing treatment performance. Plants promote drying through evapotranspiration, improve infiltration through root channel formation, and facilitate aerobic microbial activity that aids in sludge stabilization. Nutrient uptake by plants also contributes to improved leachate quality,

Suitability:
Suitable for locations with limited human resources where frequent sludge removal is not feasible
Suitable for small to medium towns with moderate sludge generation.
Performs well in tropical/subtropical climates with adequate sunlight.
Ideal where better sludge stabilization and odor control are required.
Useful in locations with high organic sludge content, requiring improved stabilization.

Pros/Cons:
Pros: Faster and more efficient drying due to plant-assisted evapotranspiration, improved sludge stabilization and reduced odor, lower risk of clogging due to root channels, reduced sludge handling frequency, contributes to a greener, nature-based solution

Cons: Slightly higher land and construction requirements, requires periodic plant harvesting and care, may require more time to establish (plant growth phase), performance may vary with plant health and season

O&M requirement:
Sludge removal every 1 to 3 years depending on design, sludge loading and drying time.
- Regular harvesting or pruning of plants to maintain root health and effective evapotranspiration.
- Monitoring plant health, replanting if mortality occurs.
- Occasional de-weeding to avoid invasive growth
- Maintenance of Sand layer
- Check and maintain leachate drainage system.

SELECT CAPACITY

Choose treatment capacity in {{ isElectromechanical ? "MLD" : "KLD" }}
{{ isElectromechanical ? "MLD" : "KLD" }} = {{ isElectromechanical ? "1000" : "1" }} Kiloliters per Day (daily sewage volume your system needs to handle)
{{ capacity }}
{{ isElectromechanical ? "MLD" : "KLD" }}

CONFIGURE MODULES

Core Modules (mandatory; included)

{{ module.name }}

{{ module.description }}

{{ category.name }} (optional; choose-one)

{{ option.name }}

{{ option.description }}

Coming Soon

YOUR FILES ARE READY!

Technical Drawings

AutoCAD schematics and specifications

File: {{ currentPDFPath?.split('/').pop() }}
File not available yet

Bill of Quantities

Cost calculator with material list

File: {{ currentExcelPath?.split('/').pop() }}
File not available yet

Core Modules (Mandatory)

{{ file.name }}

Selected Modules

{{ file.name }}

Usage Guidelines

  • Use local Schedule of Rates (SoR) for accurate cost estimates
  • Review drawings with structural engineers for site-specific adaptations
  • Consider local regulations and environmental clearances
  • Include 10-15% contingency in your budget planning
  • Usage is not mandatory - apply your professional judgement
  • Electromechanical systems require skilled operators and regular maintenance

About This Portal

India's urban sanitation landscape is undergoing a major transformation under the Swachh Bharat Mission 2.0 (SBM 2.0), a flagship initiative of the Ministry of Housing and Urban Affairs (MoHUA), Government of India. A key focus area of SBM 2.0 is Used Water Management (UWM)—a critical component for ensuring safe sanitation for all and achieving the targets outlined in Sustainable Development Goal 6 (SDG 6).

With rapid urbanization and rising volumes of used water generated from domestic sources across thousands of Urban Local Bodies (ULBs), there is an urgent need to plan and implement treatment infrastructure that is appropriate, scalable, and sustainable. However, selecting the right technology, developing context-specific designs, and estimating project costs continue to pose significant challenges for ULBs and practitioners involved in sanitation planning.

To address this gap and support more effective planning and implementation of UWM systems, MoHUA, in collaboration with the WASH Institute, has developed this dedicated web-based portal. This portal serves as a technical decision-support tool to accelerate used water management interventions across the country. It features a curated menu of widely used treatment technologies, along with associated standard designs, technical drawings, and quantity estimates (BoQs). Users can select technologies based on their specific needs, download comprehensive design packages, and apply local rate schedules to estimate project costs.

The designs, drawings, and estimates available on the portal have been developed by experienced sector professionals in accordance with CPHEEO guidelines and established best practices. For electro-mechanical treatment systems, the designs were further reviewed and vetted by leading industry experts to ensure alignment with current standards. All technologies included on the portal have been assessed for practical applicability and are already in use across various ULBs throughout India.

By providing easy access to standardized and reliable resources, the portal aims to streamline technology selection, reduce duplication of effort, and accelerate the pace of UWM implementation across the country.

Importantly, the portal is not intended to be a static repository. It is designed as a dynamic and evolving platform that can grow through contributions from practitioners and institutions. Future updates will include the integration of state-specific rate data, enabling users to generate real-time cost estimates.

TYPOLOGY TREATMENT TECHNOLOGY CAPACITY RANGE
Onsite Disposal
Individual property treatment
Settling tank + Soak pit
Simple gravity-based system
0.25KLD 0.5KLD 1KLD
Settling tank + Leach pit
Enhanced drainage system
0.5KLD 1KLD 2KLD 3KLD 4KLD 5KLD 6KLD 7KLD 8KLD 9KLD 10KLD
Faecal Sludge Treatment
Centralized sludge processing
Sludge Drying Bed
Natural dewatering system
5KLD 10KLD
Planted Drying Bed
Plant-enhanced drying
5KLD 10KLD
Used Water Treatment:
Nature Based Systems
Natural treatment processes
DEWATS
Decentralized modular system
10KLD 50KLD 75KLD 100KLD 150KLD 200KLD 250KLD 300KLD 350KLD 400KLD 450KLD 500KLD
Waste Stabilization Pond
Large-scale pond systems
50KLD 100KLD 250KLD 500KLD
Used Water Treatment:
Electro-mechanical Systems
Advanced treatment systems
Sequential Batch Reactor (SBR)
Fill-and-draw activated sludge
1MLD 2MLD 5MLD 10MLD
Extended Aeration (EA)
Conventional activated sludge
1MLD 2MLD 5MLD 10MLD
Moving Bed Bio Reactor (MBBR)
Biofilm-based treatment
1MLD 2MLD 5MLD 10MLD

UWM Planning Methodology

There are 5 stages for local governments to follow while planning and implementing used water management projects. Stages for UWM implementation

Stage 1: UWM Plan and Project Formulation

Prerequisite: If CSAP approved, to identify projects

Output: Comprehensive plan with list of projects to manage 100% used water using right mix of solutions.

Stage 2: DPR Preparation

Prerequisite: If projects identified, to prepare DPR

Output: Detailed project reports for each UWM project, as per CPHEEO norms

Stage 3: Tendering – Bid Management

Prerequisite: If DPR approved, to prepare bid documents

Output: Bidding documents and specifications needed to hire contractors

Stage 4: Construction

Prerequisite: If contractor hired, to monitor the construction and commissioning

Output: Checklist to ensure implementation as per applicable IS standards

Stage 5: Operation and Maintenance

Prerequisite: If construction in last phase, to initiate O&M

Output: SOPs for monitoring the infrastructure in the O&M stage

This portal supports Stage 3 by providing standardized technical drawings and cost estimates to streamline the tendering process.